
by David Wilson Homes
About this home
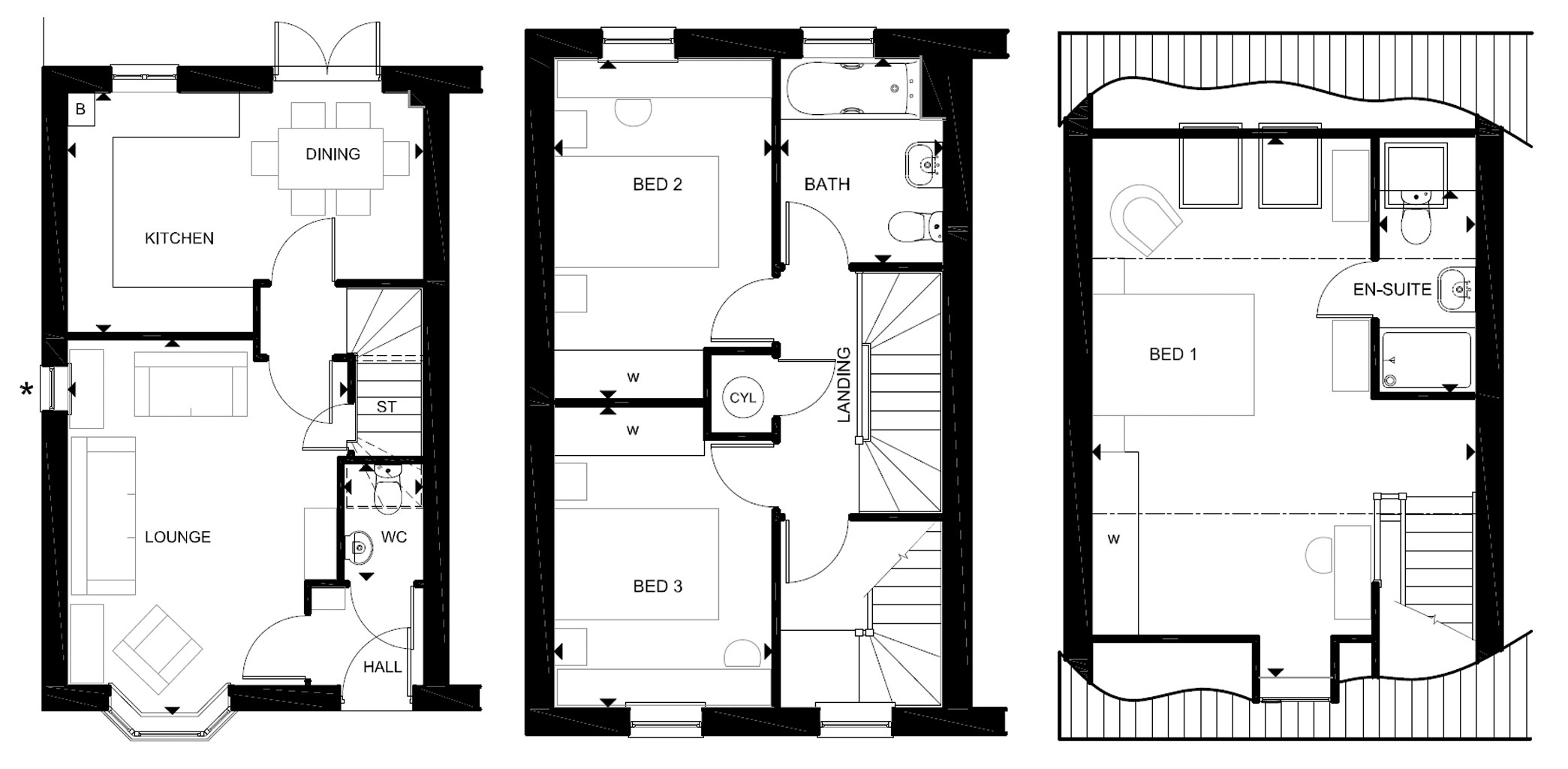
Welcome to Your New Chapter with the Kennett Congratulations on choosing the Kennett – a thoughtfully designed 3-bedroom semi-detached home that perfectly balances modern living with timeless appeal. This popular David Wilson Homes design typically features a welcoming entrance hall leading to a spacious lounge and open-plan kitchen-dining area, creating the heart of your new home. Upstairs, you'll discover three well-proportioned bedrooms and a contemporary family bathroom. The Kennett's clever layout maximizes space while maintaining that cozy, homely atmosphere families love. Its practical design appeals to first-time buyers, growing families, and downsizers alike, offering flexibility for modern life. With quality finishes and energy-efficient features throughout, this home represents excellent value and long-term comfort. As you settle into your new Kennett, MyNewHomeHub can seamlessly connect you with trusted local finishing trades to add those personal touches that make your house truly feel like home.
Post a job and find trusted local finishing trades for your new home — blinds, flooring, painting, fitted wardrobes and more.
Find finishing trades for your new build+ 13 more developments