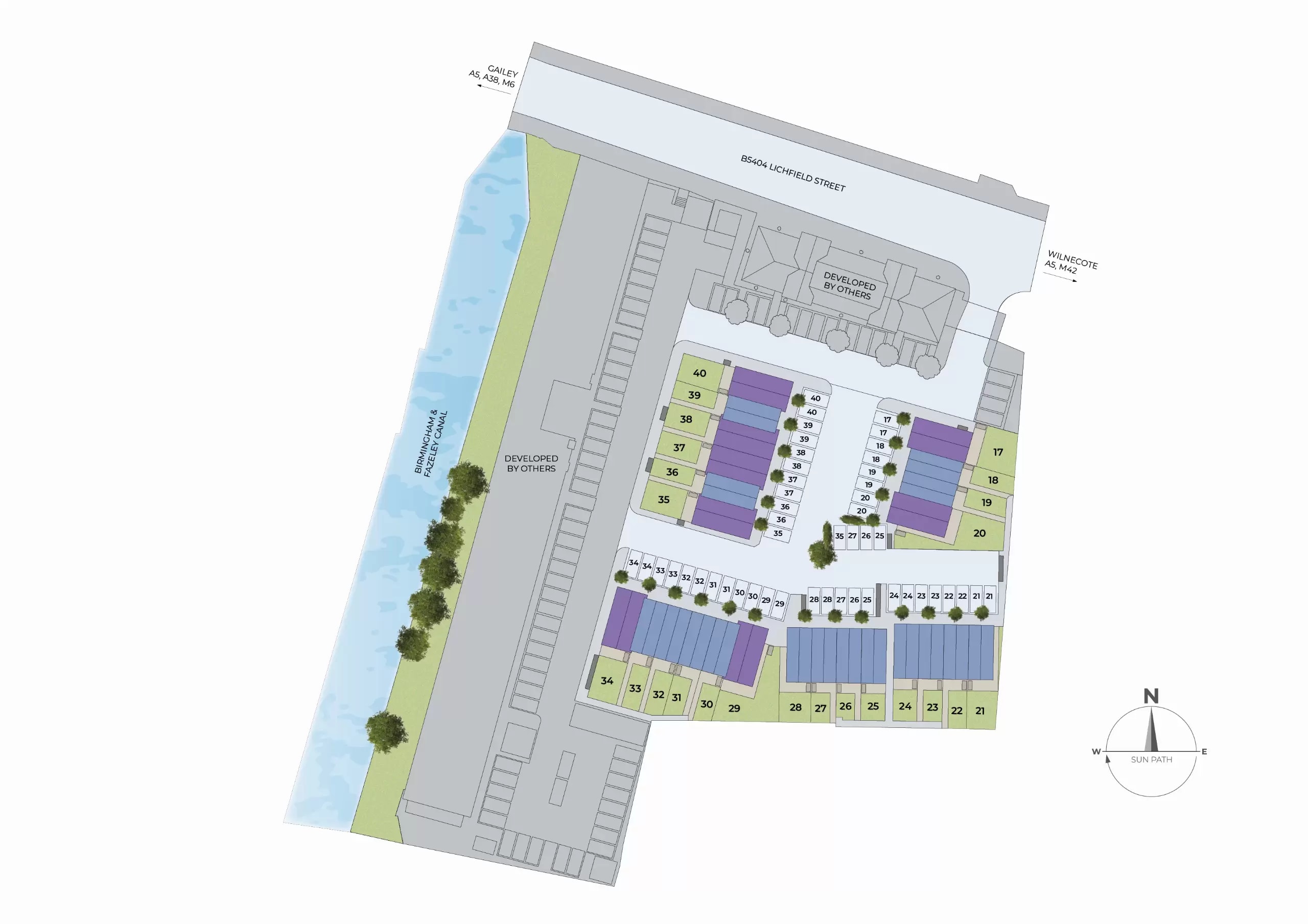
📍 Lichfield Street, Tamworth, West Midlands • B78 3UY





Nestled beside the tranquil Birmingham and Fazeley Canal, The Mews at Tolsons Mill presents a collection of thoughtfully designed 2 and 3-bedroom homes in Tamworth's historic Fazeley district. These contemporary properties occupy a prime waterside position within the Fazeley and Drayton Bassett Conservation Area, blending modern comfort with heritage charm. Each home features private parking or garage space, gas central heating, and impressive energy efficiency ratings. The development's canal-side setting offers residents peaceful walks and cycling routes right on their doorstep, while the proximity to Fazeley town centre ensures convenient access to daily amenities. With prices available on application, these homes cater to various budgets and represent an excellent opportunity for those seeking a distinctive living environment that combines rural tranquillity with urban convenience.
Typical prices for homes in this development. Get exact quotes by posting a free job.
Fazeley and Tamworth offer an appealing blend of heritage and modern amenities. The area boasts excellent transport connections, with Tamworth railway station providing direct services to Birmingham, London, and the North. The M42 and A5 are easily accessible for commuting. Local schools include highly-rated primary and secondary options, with several achieving outstanding Ofsted ratings. For shopping, Ventura Retail Park and Tamworth town centre offer major retailers, while independent shops and cafes line Fazeley's charming streets. The nearby historic city of Lichfield, with its stunning cathedral and boutique shopping, is just a short drive away. Drayton Manor Theme Park provides family entertainment, and the surrounding Staffordshire countryside offers beautiful walking and cycling opportunities along canal towpaths.
For these 2-3 bedroom canal-side homes, consider hardwood or luxury vinyl flooring in ground floor areas to handle potential moisture from the waterside location. Neutral paint schemes work beautifully with the heritage setting - think warm whites and soft greys. Install quality blinds for canal-facing windows to balance privacy with water views. Built-in wardrobes maximise space efficiently in smaller bedrooms. Garden areas may benefit from raised beds or decking due to the canal location. MyNewHomeHub can connect you with local specialists experienced in canal-side properties.