📍 Stonehouse, Gloucestershire, South West • GL10 3WW





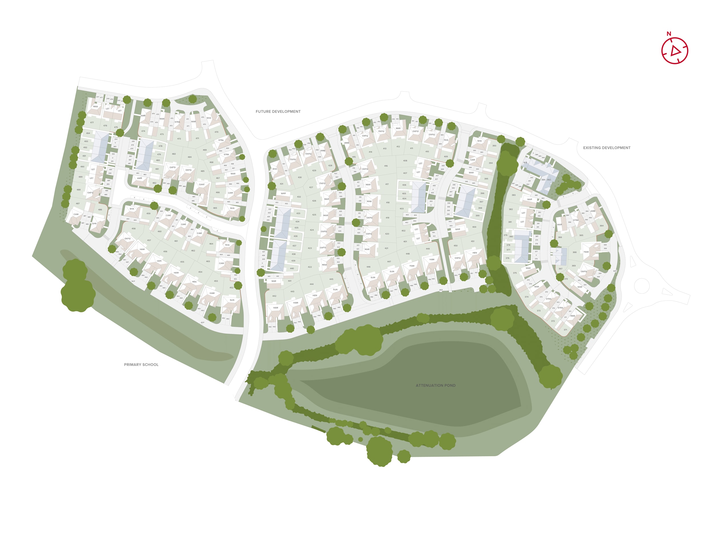
The Alders @ Great Oldbury represents a thoughtfully planned collection of contemporary family homes in the charming Gloucestershire market town of Stonehouse. This new Redrow development offers a range of house types designed for modern living, with prices spanning £350,000 to £675,000. Set in the picturesque Great Oldbury area, these homes blend quality construction with practical layouts that work for growing families. The development's location provides the perfect balance between rural tranquillity and urban convenience, with excellent transport links making it ideal for commuters to Bristol, Gloucester, and beyond. Each home comes with Redrow's signature attention to detail, though you'll want to add your personal touches with quality blinds, flooring, and decorative finishes to truly make it your own.
Typical prices for homes in this development. Get exact quotes by posting a free job.
Stonehouse combines historic charm with modern convenience, making it a sought-after location for families. The town boasts excellent primary schools including Stonehouse Park Junior School and St Cyr's Church of England Primary, with secondary education at Maidenhill School nearby. Transport links are superb - Stonehouse railway station provides direct services to London Paddington in under 90 minutes, plus connections to Bristol and Gloucester. The M5 is easily accessible for car commuters. Local amenities include Tesco and Co-op for daily shopping, plus the popular Ocean Fish Bar and several village pubs. The historic Stroudwater Navigation canal runs through the area, offering lovely walking routes. Nearby Stroud provides additional shopping and dining options, while the Cotswolds are on your doorstep for weekend adventures.
With house prices reaching £675,000, these larger family homes deserve premium finishing touches. Focus on statement window treatments - plantation shutters work beautifully in period-style properties, while contemporary homes suit sleek roller blinds. For flooring, consider luxury vinyl planks in high-traffic areas and quality carpets in bedrooms. The higher-value properties justify investing in fitted wardrobes for the master suite and children's rooms. Don't overlook outdoor spaces - professional landscaping can significantly enhance these substantial gardens. MyNewHomeHub connects you with trusted local trades who understand the quality standards these homes deserve, ensuring your finishing touches match your investment.